PROJEKTY
PROJEKTANCI
WNĘTRZA
CO SIĘ DZIEJE
CIEKAWE
DZIEJE SIĘ
STUDIO DOBRYCH ROZWIĄZAŃ
STREFA PROJEKTANTA
REKLAMA
BAZA PROJEKTANTÓW
/
GISMOARCHITECTS
/
RZUTY WNĘTRZ
Olena, Taras Bodnar
GISMOARCHITECTS
OBSERWUJ
Projekty
(8)
Obserwujący
Obserwowani
Opinie
(0)
Kontakt
0
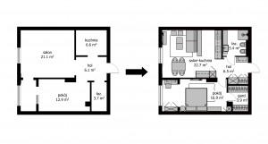
Aranżacja jaskrawego mieszkania
Wnętrze:
KUCHNIA
Typ
RZUTY WNĘTRZ
Skomentuj (0)
Podziel się
Oceń galerię
0 / 0 głosów
Aranżacja jaskrawego mieszkania
Komentarze (0)
Skomentuj
Dodaj komentarz