OBSERWUJ
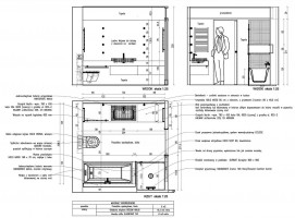
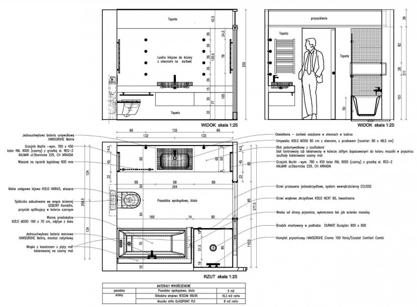
Przykładowy rysunek wykonawczy łazienki z opisanym wyposażeniem i materiałami wykończeniowymi.