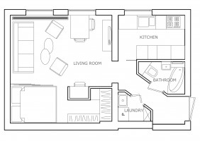
Kawalerka znajdująca się w oficynie w jednej z jeżyckich kamienic, została zaprojektowana dla singielki lubiącej wnętrza jasne, przestronne i funkcjonalne. Całość zbliżona najbardziej jest do stylu skandynawskiego, bez przesadnych ozdób i detali. We wnętrzu udało się zachować charakterystyczne elementy dla tego budownictwa stara ościeżnica, odkryta cegła pomalowana na biało.